1104 Moore Street, Decatur, IL
$50,000
Pending
2 Beds
1 Bath
841 SqFt
0.08 Acres
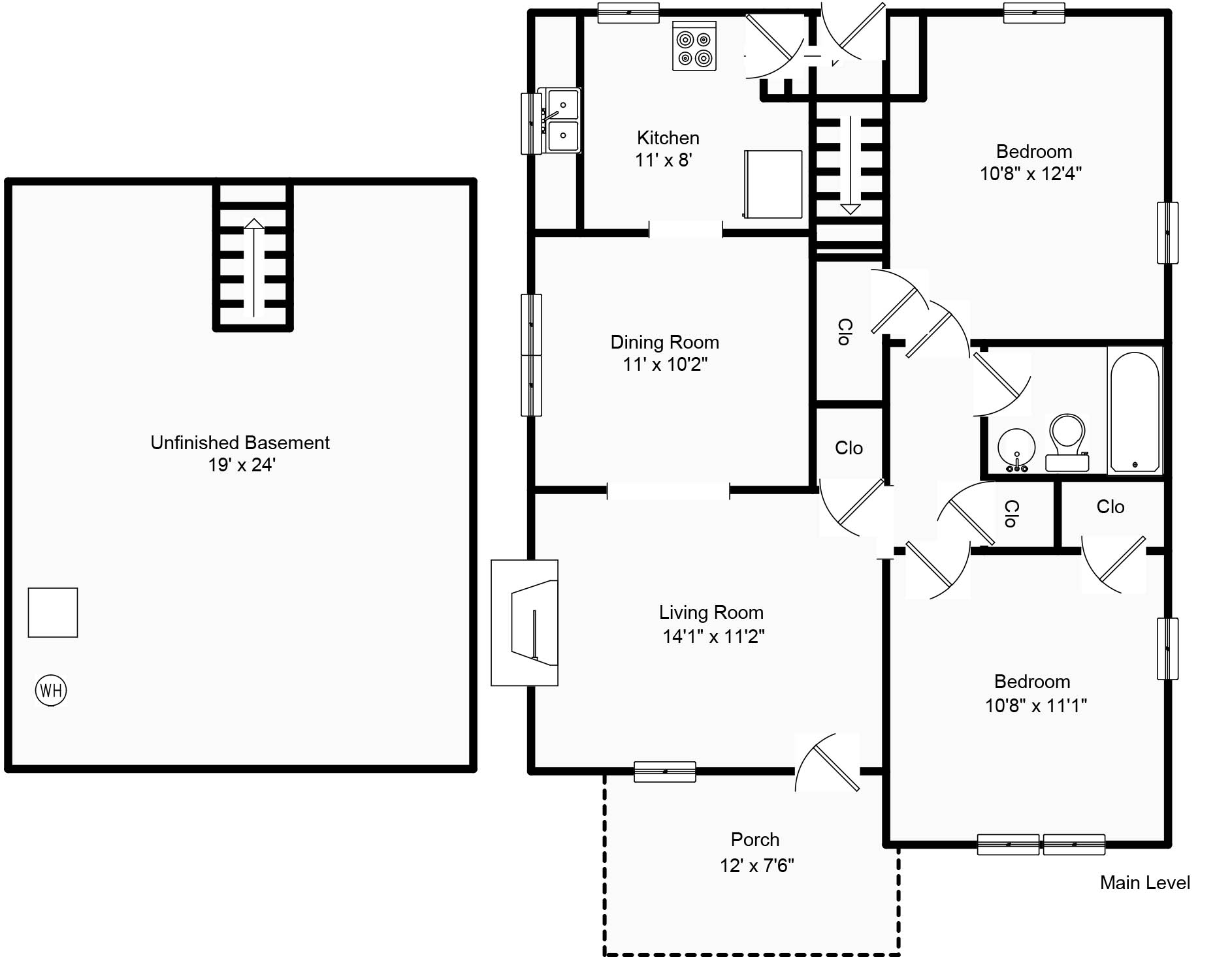
About 1104 Moore Street
Check out this 2-bedroom, 1-bath bungalow on a corner lot just steps from the park! Enjoy mornings on the cozy front porch before stepping inside to a freshly remodeled interior. This home features new paint and flooring throughout, giving it a clean, updated feel. The layout includes a bright living room with a cozy fireplace, dedicated dining area, and functional kitchen. The basement has been sealed and freshly painted, offering great storage or workspace potential. Don’t miss your chance to own this darling home!
Facts & Features
| MLS® # | 6254838 | 
|---|---|
| Price | $50,000 | 
| Cost Per Square Foot | $59 | 
| Bedrooms | 2 | 
| Bathrooms | 1.00 | 
| Full Baths | 1 | 
| Total Finished Square Feet | 841 | 
| Total Finished Above Grade | 841 | 
| Main | 841 | 
| Basement Total | 456 | 
| Acres | 0.08 | 
| Year Built | 1926 | 
| Type | Single Family | 
| Sub-Type | Single Family Residence | 
| Style | Traditional | 
| Status | Pending | 
| Taxes | $643 | 
| Tax Year | 2024 | 
Community Information
| Address | 1104 Moore Street | 
|---|---|
| City | Decatur | 
| County | Macon | 
| State | IL | 
| Zip Code | 62521 | 
Amenities
| Is Waterfront | No | 
|---|---|
| Has Pool | No | 
Interior
| Appliances | Gas Water Heater, None | 
|---|---|
| Heating | Gas | 
| Cooling | Central Air | 
| Has Basement | Yes | 
| Basement | Unfinished, Full | 
| Fireplace | Yes | 
| # of Fireplaces | 1 | 
| Fireplaces | Family/Living/Great Room | 
| # of Stories | 1 | 
| Stories | One | 
Exterior
| Roof | Shingle | 
|---|---|
| Construction | Vinyl Siding | 
| Foundation | Basement | 
School Information
| District | Decatur Dist 61 | 
|---|
Additional Information
| Date Listed | September 8th, 2025 | 
|---|---|
| Days on Market | 57 | 
| Zoning | MUN | 
Listing Details
| Agent | Tony Piraino | 
|---|---|
| Office | Brinkoetter REALTORS® |