1645 W Center Street, Decatur, IL
$65,000
Active
3 Beds
1 Bath
925 SqFt
0.18 Acres
2 Car Garage
About 1645 W Center Street
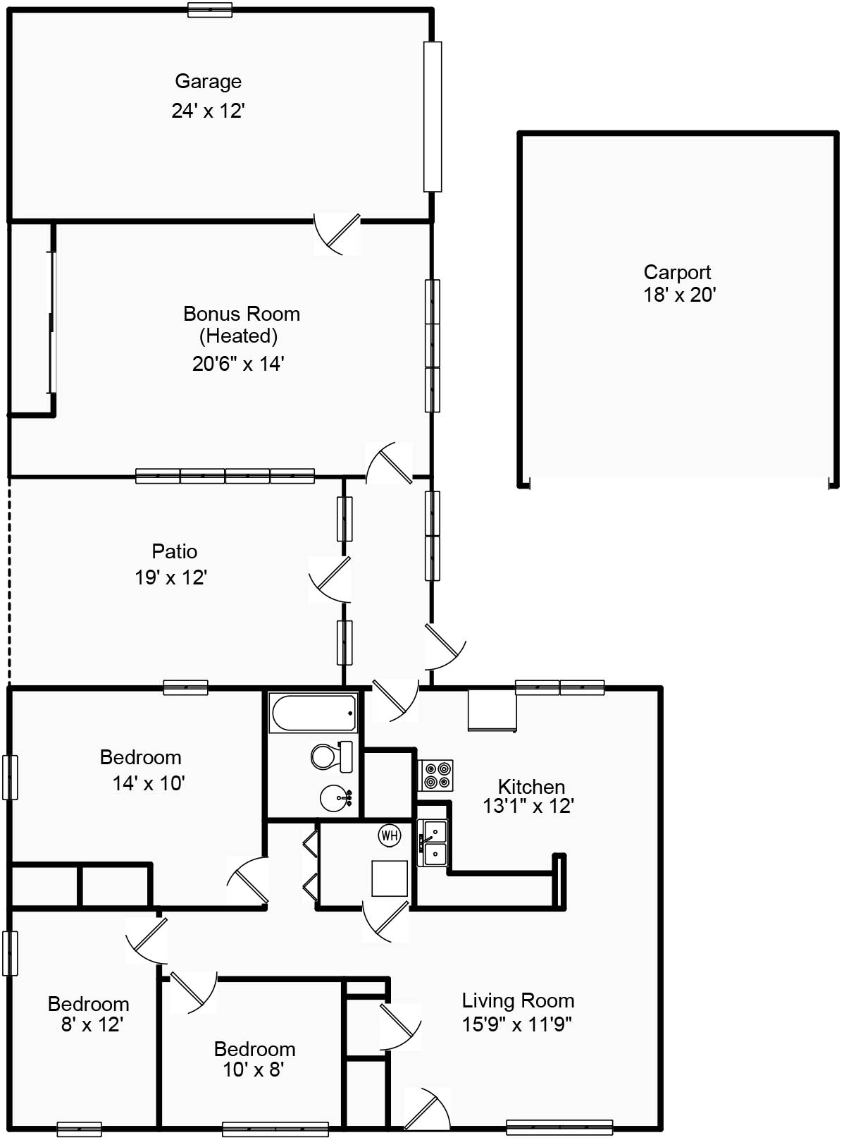
This 3-bedroom, 1-bath ranch offers more than meets the eye with a spacious 20' x 14' bonus room—perfect for a family room, hobby space, or home office. The property features both an attached garage and a carport for added convenience. Previously used as an investment property, it’s a great fit for any buyer, whether you’re looking for your next home or a solid addition to your portfolio. Currently there is no homestead exemption on the property, but if owner-occupied, taxes could be reduced by approximately $600 annually. Located on Decatur’s west side, this home combines value and potential in one package—schedule your showing today!
Facts & Features
| MLS® # | 6254971 |
|---|---|
| Price | $65,000 |
| Cost Per Square Foot | $70 |
| Bedrooms | 3 |
| Bathrooms | 1.00 |
| Full Baths | 1 |
| Total Finished Square Feet | 925 |
| Total Finished Above Grade | 925 |
| Main | 925 |
| Acres | 0.18 |
| Year Built | 1962 |
| Type | Single Family |
| Sub-Type | Single Family Residence |
| Style | Ranch |
| Status | Active |
| Taxes | $1,800 |
| Tax Year | 2024 |
Community Information
| Address | 1645 W Center Street |
|---|---|
| Subdivision | B & G Dev 1st Add |
| City | Decatur |
| County | Macon |
| State | IL |
| Zip Code | 62526 |
Amenities
| Parking | Attached, Carport, Garage |
|---|---|
| # of Garage Spaces | 2 |
| Is Waterfront | No |
| Has Pool | No |
Interior
| Appliances | Dishwasher, Gas Water Heater |
|---|---|
| Heating | Forced Air, Gas |
| Cooling | Central Air |
| Basement | Crawl Space |
| Fireplace | No |
| # of Stories | 1 |
| Stories | One |
Exterior
| Lot Dimensions | 137'x56' |
|---|---|
| Roof | Asphalt, Shingle |
| Construction | Wood Siding |
| Foundation | Crawlspace |
School Information
| District | Decatur Dist 61 |
|---|
Additional Information
| Date Listed | September 8th, 2025 |
|---|---|
| Days on Market | 45 |
| Zoning | RES |
Listing Details
| Agent | Tony Piraino |
|---|---|
| Office | Brinkoetter REALTORS® |