2626 S Forrest Green Drive, Decatur, IL
$139,900
Pending
2 Beds
2½ Baths
1,584 SqFt
1.41 Acres
1 Car Garage
About 2626 S Forrest Green Drive
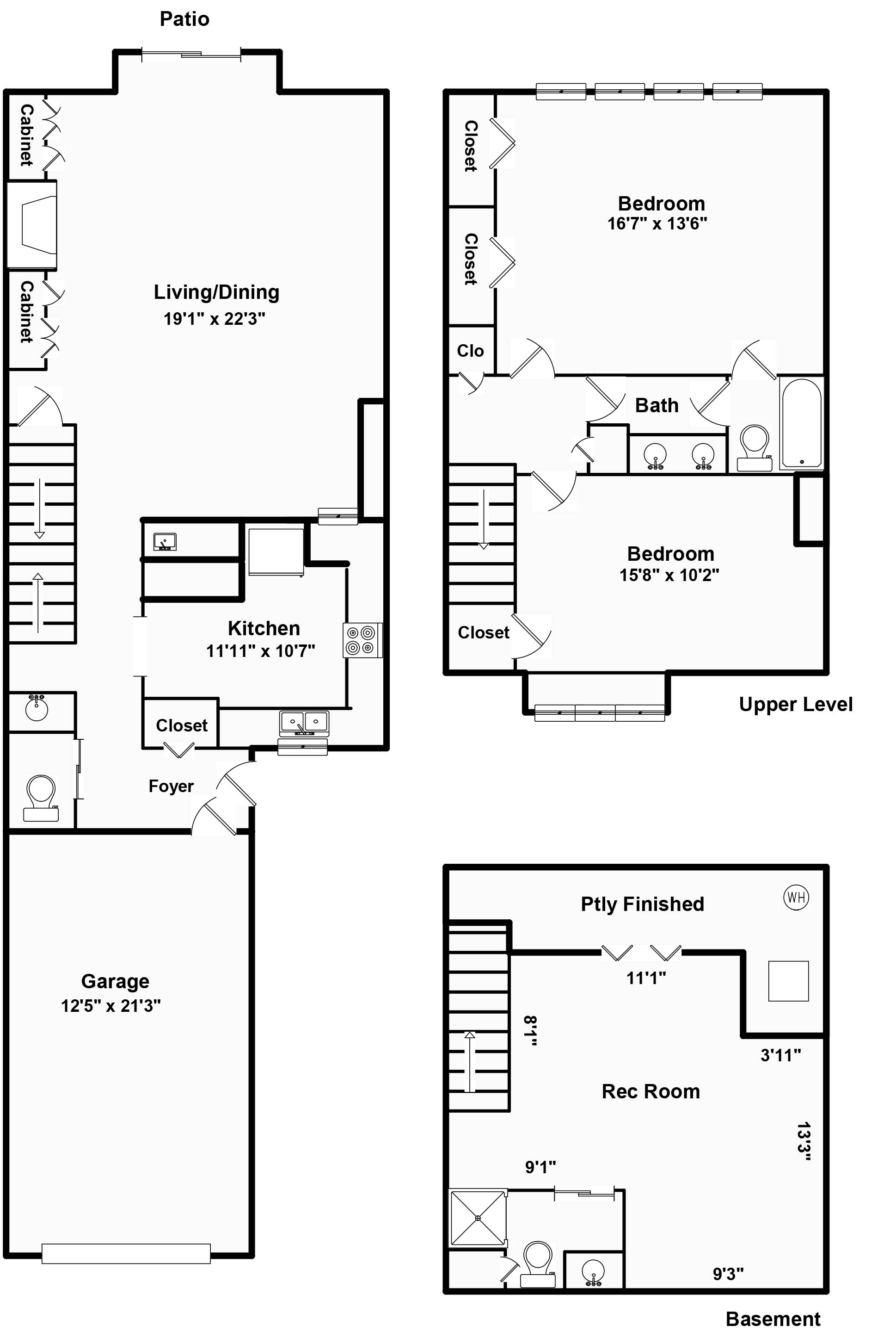
Very nice updated condo in south shores area! Main floor has remodeled custom kitchen with cherry cabinets, large living space with wet bar, dining area and fireplace plus a half bath and wood floors throughout. Upper level features two bedrooms plus a master bedroom/bathroom. Lower level has a flex room, full bathroom and laundry space. Has basement waterproofing with lifetime guarantee that transfers to new owner. There is also a nice concrete patio to the rear of main level. HOA is $209./month and that includes all exterior maintenance, lawn care and snow removal. Don't miss out on this gem! Schedule a showing today.
Facts & Features
| MLS® # | 6255051 |
|---|---|
| Price | $139,900 |
| Cost Per Square Foot | $88 |
| Bedrooms | 2 |
| Bathrooms | 3.00 |
| Full Baths | 2 |
| Half Baths | 1 |
| Total Finished Square Feet | 1,584 |
| Total Finished Above Grade | 1,268 |
| Main | 696 |
| Upper 1 | 572 |
| Basement Total | 411 |
| Basement Finished | 316 |
| Basement Unfinished | 95 |
| Acres | 1.41 |
| Year Built | 1977 |
| Type | Single Family |
| Sub-Type | Single Family Residence |
| Style | Other |
| Status | Pending |
| Taxes | $3,004 |
| Tax Year | 2023 |
Community Information
| Address | 2626 S Forrest Green Drive |
|---|---|
| Subdivision | Condominium |
| City | Decatur |
| County | Macon |
| State | IL |
| Zip Code | 62521 |
Amenities
| Parking | Attached, Garage |
|---|---|
| # of Garage Spaces | 1 |
| Is Waterfront | No |
| Has Pool | No |
Interior
| Appliances | Dishwasher, Gas Water Heater, Microwave, Oven, Range, Refrigerator |
|---|---|
| Heating | Forced Air |
| Cooling | Central Air |
| Has Basement | Yes |
| Basement | Finished, Full |
| Fireplace | Yes |
| # of Fireplaces | 1 |
| Fireplaces | Gas |
| # of Stories | 2 |
| Stories | Two |
Exterior
| Roof | Shingle |
|---|---|
| Construction | Wood Siding |
| Foundation | Basement |
School Information
| District | Decatur Dist 61 |
|---|
Additional Information
| Date Listed | September 26th, 2025 |
|---|---|
| Days on Market | 18 |
| Zoning | RES |
| HOA Fees | 209 |
Listing Details
| Agent | Jason White |
|---|---|
| Office | Brinkoetter REALTORS® |