7450 W William Street, Decatur, IL
$60,000
Pending
2 Beds
2 Baths
1,008 SqFt
0.96 Acres
2 Car Garage
About 7450 W William Street
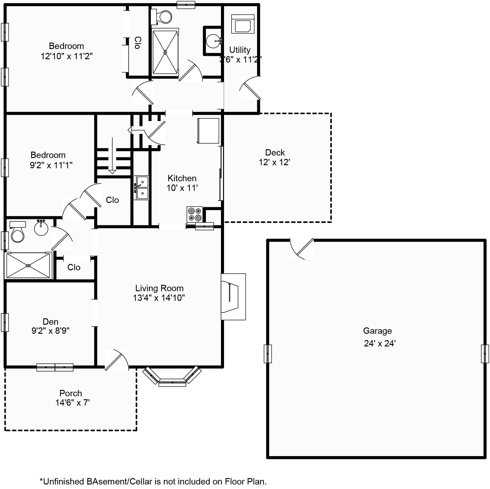
Great price and potential investment opportunity with this quaint ranch on almost an acre wooded lot in Sangamon Valley schools! The house has been updated with a metal roof on the house and garage, vinyl siding, replacement windows, new and refinished flooring, new trim and paint, HVAC (2021), and 2 remodeled bathrooms. The kitchen is open to the living room with a wood burning fireplace. There are 2 bedrooms and a 3rd room that could be used as a bedroom or den. Laundry room is on the main level. The property includes two storage sheds, a 2-car detached garage, PLUS some pear and apple trees! For this price, the property is being sold AS IS. (Sqft not deemed accurate until professionally measured)
Facts & Features
| MLS® # | 6255581 | 
|---|---|
| Price | $60,000 | 
| Cost Per Square Foot | $60 | 
| Bedrooms | 2 | 
| Bathrooms | 2.00 | 
| Full Baths | 2 | 
| Total Finished Square Feet | 1,008 | 
| Total Finished Above Grade | 1,008 | 
| Main | 1,008 | 
| Basement Total | 960 | 
| Acres | 0.96 | 
| Year Built | 1930 | 
| Type | Single Family | 
| Sub-Type | Single Family Residence | 
| Style | Ranch | 
| Status | Pending | 
| Taxes | $1,369 | 
| Tax Year | 2024 | 
Community Information
| Address | 7450 W William Street | 
|---|---|
| City | Decatur | 
| County | Macon | 
| State | IL | 
| Zip Code | 62522 | 
Amenities
| Parking | Detached, Garage | 
|---|---|
| # of Garage Spaces | 2 | 
| Is Waterfront | No | 
| Has Pool | No | 
Interior
| Appliances | Dryer, Gas Water Heater, Refrigerator, Washer, Oven | 
|---|---|
| Heating | Forced Air | 
| Cooling | None | 
| Has Basement | Yes | 
| Basement | Unfinished, Full | 
| Fireplace | Yes | 
| # of Fireplaces | 1 | 
| Fireplaces | Family/Living/Great Room, Wood Burning | 
| # of Stories | 1 | 
| Stories | One | 
Exterior
| Exterior Features | Shed | 
|---|---|
| Roof | Metal | 
| Construction | Vinyl Siding | 
| Foundation | Basement | 
School Information
| District | Sangamon Valley Dist 9 | 
|---|
Additional Information
| Date Listed | October 10th, 2025 | 
|---|---|
| Days on Market | 25 | 
| Zoning | RES | 
Listing Details
| Agent | Joseph Doolin | 
|---|---|
| Office | Brinkoetter REALTORS® |