821 W Karen Drive, Decatur, IL
$235,000
Active
4 Beds
3 Baths
2,596 SqFt
0.24 Acres
3 Car Garage
About 821 W Karen Drive
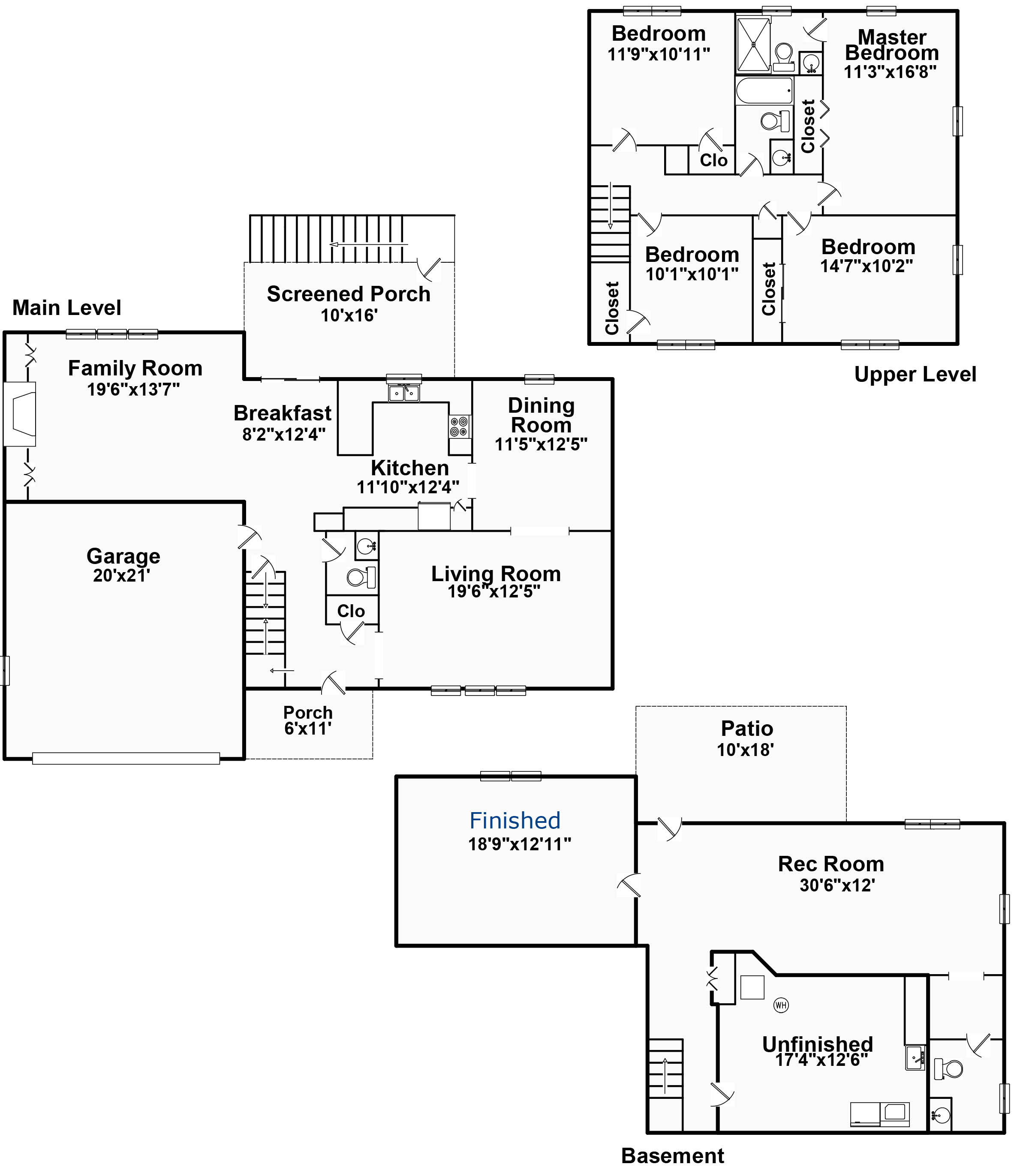
Welcome to this beautiful 4-bedroom, 2 full bath, 2 half bath two-story home located on Decatur’s quiet north end. This property backs up to a private horse pasture, offering peaceful views and a unique sense of privacy. Enjoy your morning coffee or unwind in the evening on the screened-in porch overlooking the fenced backyard and horses grazing nearby. Inside, you’ll find a bright kitchen with white cabinetry, a coffee bar, and plenty of storage. The main level offers both a formal living room and a cozy family room featuring a fireplace and built-in shelving. Upstairs, you’ll find four spacious bedrooms, including a comfortable primary suite. The walk-out basement provides even more living space with a large rec room, an office/bonus room, and an unfinished area perfect for storage or a workshop. Additional updates include roof (2011), HVAC (2018), and water heater (2009). The garage includes a 220V outlet for EV charging, and the washer/dryer (2020) stay. Seller is open to a carpet replacement concession and replacing the sliding door to the screened porch with an acceptable offer. There is currently no owner-occupied homestead exemption in place, but once applied, it will reduce taxes by approximately $600/year. This home offers a rare combination of quiet country-like surroundings and city convenience—don’t miss it!
Facts & Features
| MLS® # | 6255777 |
|---|---|
| Price | $235,000 |
| Cost Per Square Foot | $91 |
| Bedrooms | 4 |
| Bathrooms | 4.00 |
| Full Baths | 2 |
| Half Baths | 2 |
| Total Finished Square Feet | 2,596 |
| Total Finished Above Grade | 2,030 |
| Main | 1,132 |
| Upper 1 | 898 |
| Basement Total | 1,117 |
| Basement Finished | 566 |
| Basement Unfinished | 551 |
| Acres | 0.24 |
| Year Built | 1974 |
| Type | Single Family |
| Sub-Type | Single Family Residence |
| Style | Traditional |
| Status | Active |
| Taxes | $5,440 |
| Tax Year | 2024 |
Community Information
| Address | 821 W Karen Drive |
|---|---|
| Subdivision | Montgomery Hills 1st Add |
| City | Decatur |
| County | Macon |
| State | IL |
| Zip Code | 62526 |
Amenities
| Parking | Attached, Garage |
|---|---|
| # of Garage Spaces | 3 |
| Is Waterfront | No |
| Has Pool | No |
Interior
| Appliances | Dryer, Dishwasher, Gas Water Heater, Range, Refrigerator, Washer |
|---|---|
| Heating | Forced Air, Gas |
| Cooling | Central Air, Attic Fan |
| Has Basement | Yes |
| Basement | Finished, Walk-Out Access, Full, Sump Pump |
| Fireplace | Yes |
| # of Fireplaces | 1 |
| Fireplaces | Gas |
| # of Stories | 2 |
| Stories | Two |
Exterior
| Exterior Features | Deck, Fence |
|---|---|
| Lot Dimensions | irregular |
| Roof | Asphalt, Shingle |
| Construction | Brick, Vinyl Siding |
| Foundation | Basement |
School Information
| District | Decatur Dist 61 |
|---|
Additional Information
| Date Listed | October 27th, 2025 |
|---|---|
| Days on Market | 7 |
| Zoning | RES |
Listing Details
| Agent | Tony Piraino |
|---|---|
| Office | Brinkoetter REALTORS® |